Fokus-Background

Referenz

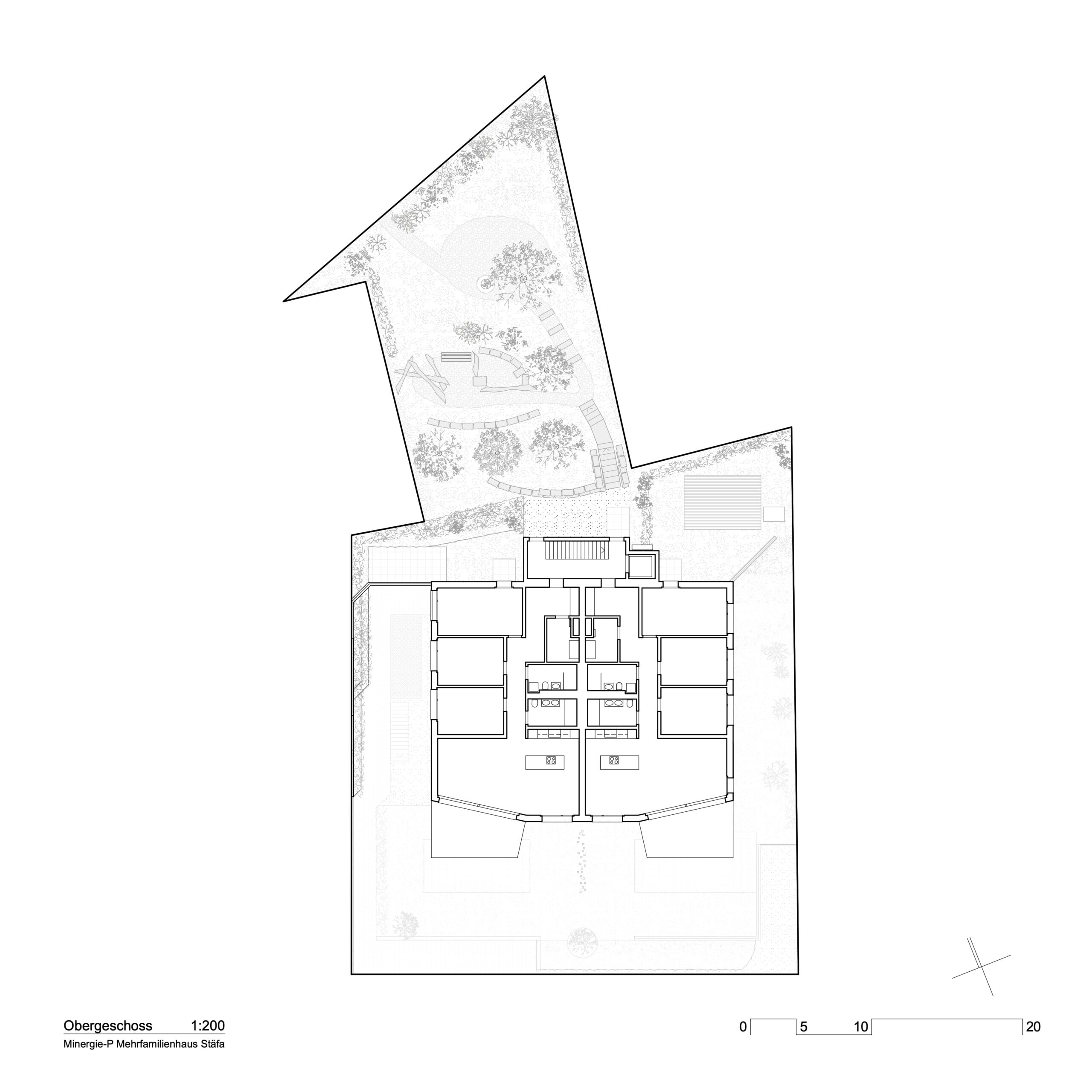
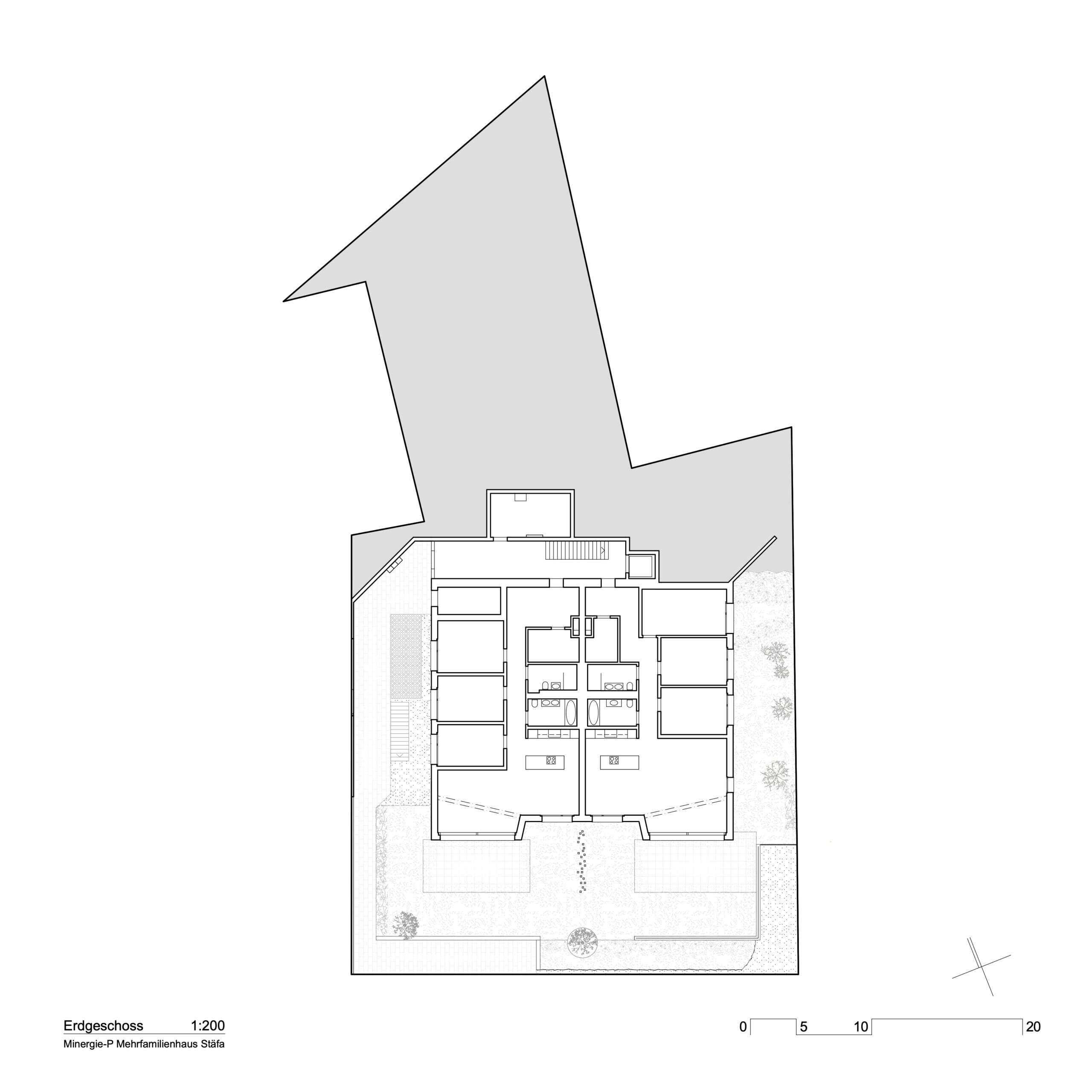
Minergie-P Mehrfamilienhaus Stäfa

Ökologisch bauen - eine Frage der Haltung

Integrität leben

Vom Kostenvoranschlag bis hin zum Einzugstermin: Wir machen keine Versprechen, die wir nicht halten können. Die Bauherrschaft muss sich auf uns verlassen können. Und sollte es durch äussere Einflüsse doch zu Änderungen und Anpassungen kommen, suchen wir sofort das Gespräch.

Ebenfalls Teil unserer Firmenphilosophie: Wir betreten keine Graubereiche. Nur so bleiben wir uns, unseren Wertvorstellungen und unserer Lebenshaltung gegenüber treu. Wir erleben es gerade in diesem Punkt sehr wertvoll, dass wir als Zweierteam unterwegs sind und uns gegenseitig daran erinnern, dass wir diesen Kurs bewusst eingeschlagen haben und uns durch nichts davon abbringen lassen.

 

Michael Fuchs, Stefan Staub

Bauen ist eine Haltungsfrage

Von Anfang an überzeugten uns die qualifizierten Mitarbeiterinnen und Mitarbeiter mit ihrer Leidenschaft für Architektur und Holzbau. Wir merkten schnell, dass sich hier nicht ein Architekturbüro verwirklichen will, sondern die Bauherrschaft im Zentrum steht. Die Fokus AG ging im Prozess der Planung auf unsere Wünsche und Anregungen ein, die auch während der Bauphase aufgenommen und umgesetzt wurden. Die beiden Geschäftsleiter erlebten wir als integre Persönlichkeiten: verlässlich, ehrlich, ihren Wertvorstellungen verpflichtet. Auf Zusagen konnten wir uns vollumfänglich verlassen, ganz gleich, ob es sich um Termine oder Kostenabsprachen handelte. Was wir ebenfalls schätzten, waren die kurzen Entscheidungswege. Die kompetenten und ausführlichen Beratungsgespräche legten jeweils eine gute Grundlage für unkomplizierte Entscheide.

Marlis De Bellis, Stäfa, und Irene Hutter, Landquart