Fokus-Background

Referenz

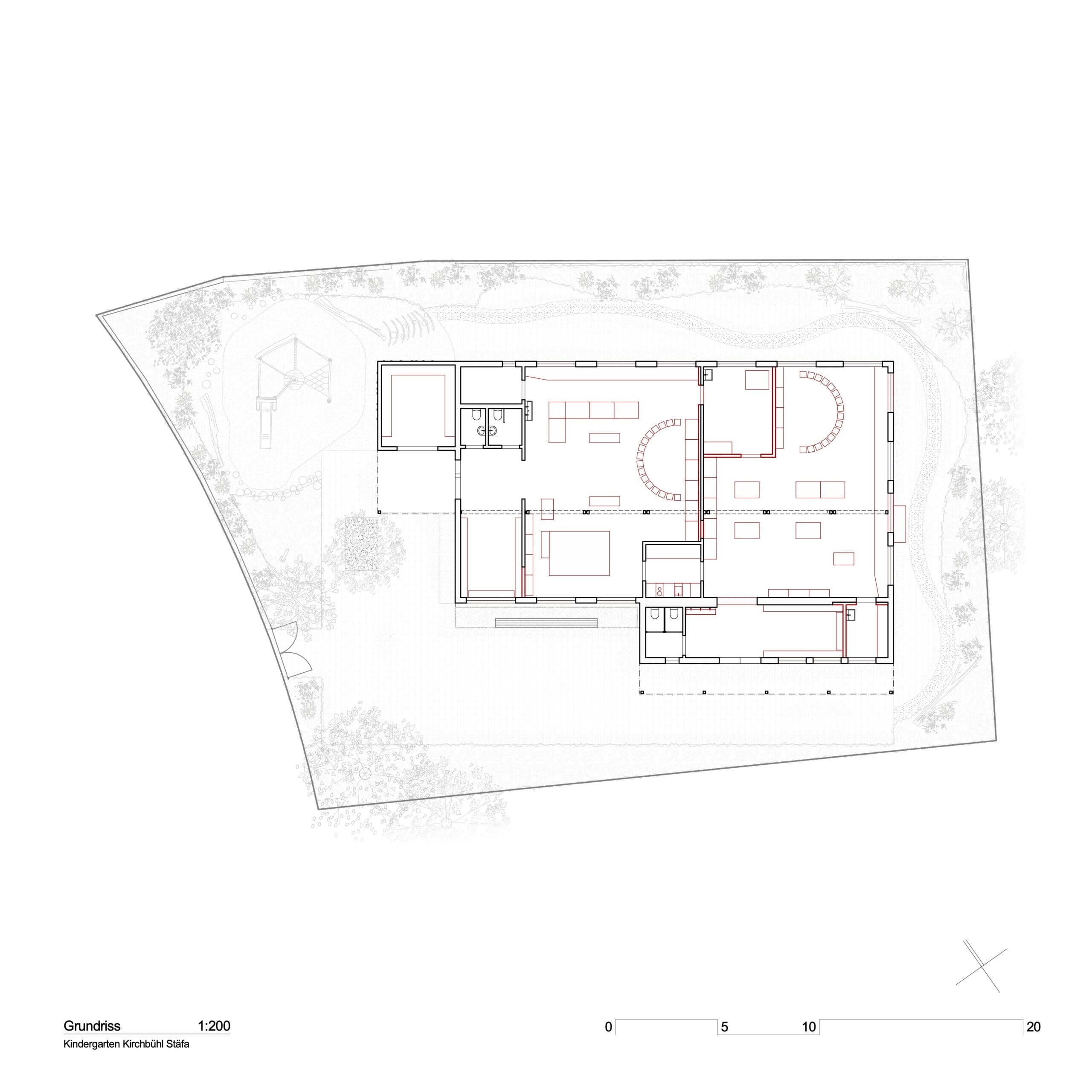
Kindergarten Kirchbühl Stäfa

Ausbau für die nächste Generation

Erweiterungsbau mit Herausforderungen

Bauen für die öffentliche Hand heisst: Es muss kosteneffizient und doch repräsentativ sein. Beides entspricht unserer Firmenphilosophie, beides haben wir im Auftrag der Gemeinde Stäfa umgesetzt.

Aus einem charmefreien Pavillon, der als Bibliotheks-Provisorium genutzt wurde, entstand ein zweckmässiger und anschaulicher Doppelkindergarten.

Die grosse Herausforderung war, den Pavillon aus Holzmodulen mit möglichst wenigen baulichen Massnahmen und in kürzester Zeit zu erweitern und die Innen- und Aussenräume harmonisch miteinander zu verbinden. Mit zwei zusätzlichen Holzmodulen und weiteren Fenstern in der bestehenden Fassade schufen wir helle, multifunktionale Lern- und Spielräume, die übergangslos in die Aussenräume führen.

 

Stefan Staub

Qualität trotz Zeitdruck

Im Juni 2021 bewilligte die Gemeindeversammlung den Ausführungskredit für die Erweiterung des bestehenden Pavillons zu einem Doppelkindergarten. Acht Monate später konnte der Kindergarten bereits in Betrieb genommen werden.

Diesen Umstand verdanken wir unter anderem der speditiven Zusammenarbeit mit der Fokus AG. Das Unternehmen überzeugte uns mit seiner Eigeninitiative und Weitsicht. Bei der Planung war die Fokus AG immer einen Schritt voraus und stellte nebst den Bedürfnissen der Schule und den baulichen Rahmenbedingungen die optimale Nutzung der begrenzten Platzverhältnisse in den Mittelpunkt.

 

Philipp Thiedau, Projektleiter Hochbau Gemeinde Stäfa